Tìm kiếm mẫu nhà

quy trinh

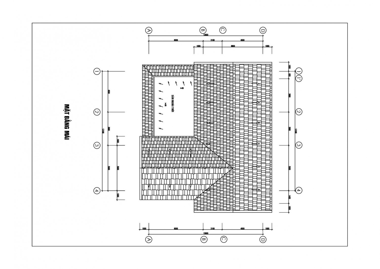
MBT-00009

  • GÓI THIẾT KẾ KIẾN TRÚC MỚI
  • Đăng ngày 04-12-2020 05:06:45 PM - 1361 Lượt xem

  • Phối cảnh theo mẫu có sẵn trên website

    Mặt bằng vật dụng các tầng, mặt cắt, mặt đứng kích thước

    Không sửa phối cảnh mẫu, hỗ trợ 2 lần chỉnh sửa mặt bằng theo yêu cầu Khách hàng

    Bản vẽ khổ A4, gởi bản vẽ in gồm phối cảnh và các bản vẽ liên quan, hoặc gởi email file thiết kế mặt bằng, mặt cắt và mặt đứng định dạng PDF, file acad, file ảnh...

    Liên hệ : 0943.973.325

        1
Tổng số điểm bài viết là: 0 điểm / 0 lượt
Click để đánh giá bài viết
1 sao
 
2 sao
 
3 sao
 
4 sao
 
5 sao
 
 
 

hotline1

công năng sử dụng các tầng:

Tầng 1: gara+ Sảnh và phòng khách+ phòng bếp và ăn+ phòng ngủ osin+ 1 vệ sinh chung

Tầng 2: 3 phòng ngủ+ 2 vệ sinh+ 1 sinh hoạt chung.

Tầng 3: Phòng ngủ khách+ phòng karaoke+phòng tập thể thao+ phòng thờ+ 1 vệ sinh chung

Tầng áp mái: Sân chơi trong nhà+ sân giặt phơi

 

Mẫu mặt bằng MBT-00205

Liên hệ : 0943.973.325



Trao đổi bản vẽ

Mặt bằng mẫu mang tính chất tham khảo nhu cầu về nhà ở của Khách hàng, chúng tôi hỗ trợ chỉnh sửa mặt bằng cho phù hợp với phối cảnh và nhu cầu thực tế của Khách hàng khi mua hàng

Mẫu mặt bằng MBT-00034

Liên hệ : 0943.973.325



Trao đổi bản vẽ

Mặt bằng mẫu mang tính chất tham khảo nhu cầu về nhà ở của Khách hàng, chúng tôi hỗ trợ chỉnh sửa mặt bằng cho phù hợp với phối cảnh và nhu cầu thực tế của Khách hàng khi mua hàng

Mẫu mặt bằng MBT-00008

Liên hệ : 0943.973.325



Trao đổi bản vẽ

Mặt bằng mẫu mang tính chất tham khảo nhu cầu về nhà ở của Khách hàng, chúng tôi hỗ trợ chỉnh sửa mặt bằng cho phù hợp với phối cảnh và nhu cầu thực tế của Khách hàng khi mua hàng

Mẫu mặt bằng MBT-00193

Liên hệ : 0943.973.325



Trao đổi bản vẽ

Mặt bằng mẫu mang tính chất tham khảo nhu cầu về nhà ở của Khách hàng, chúng tôi hỗ trợ chỉnh sửa mặt bằng cho phù hợp với phối cảnh và nhu cầu thực tế của Khách hàng khi mua hàng

Mẫu mặt bằng MBT-00048

Liên hệ : 0943.973.325



Trao đổi bản vẽ

Mặt bằng mẫu mang tính chất tham khảo nhu cầu về nhà ở của Khách hàng, chúng tôi hỗ trợ chỉnh sửa mặt bằng cho phù hợp với phối cảnh và nhu cầu thực tế của Khách hàng khi mua hàng

Mẫu mặt bằng MBT-00174

Liên hệ : 0943.973.325



Trao đổi bản vẽ

Mặt bằng mẫu mang tính chất tham khảo nhu cầu về nhà ở của Khách hàng, chúng tôi hỗ trợ chỉnh sửa mặt bằng cho phù hợp với phối cảnh và nhu cầu thực tế của Khách hàng khi mua hàng

Mẫu mặt bằng MBT-00047

Liên hệ : 0943.973.325



Trao đổi bản vẽ

Mặt bằng mẫu mang tính chất tham khảo nhu cầu về nhà ở của Khách hàng, chúng tôi hỗ trợ chỉnh sửa mặt bằng cho phù hợp với phối cảnh và nhu cầu thực tế của Khách hàng khi mua hàng

Mẫu mặt bằng MBT-00198

Liên hệ : 0943.973.325



Trao đổi bản vẽ

Mặt bằng mẫu mang tính chất tham khảo nhu cầu về nhà ở của Khách hàng, chúng tôi hỗ trợ chỉnh sửa mặt bằng cho phù hợp với phối cảnh và nhu cầu thực tế của Khách hàng khi mua hàng

s1

s3

 

s3