Tìm kiếm mẫu nhà

quy trinh

MBT-00024

  • GÓI THIẾT KẾ KIẾN TRÚC MỚI
  • Đăng ngày 05-12-2023 10:07:00 PM - 442 Lượt xem

  • Phối cảnh theo mẫu có sẵn trên website

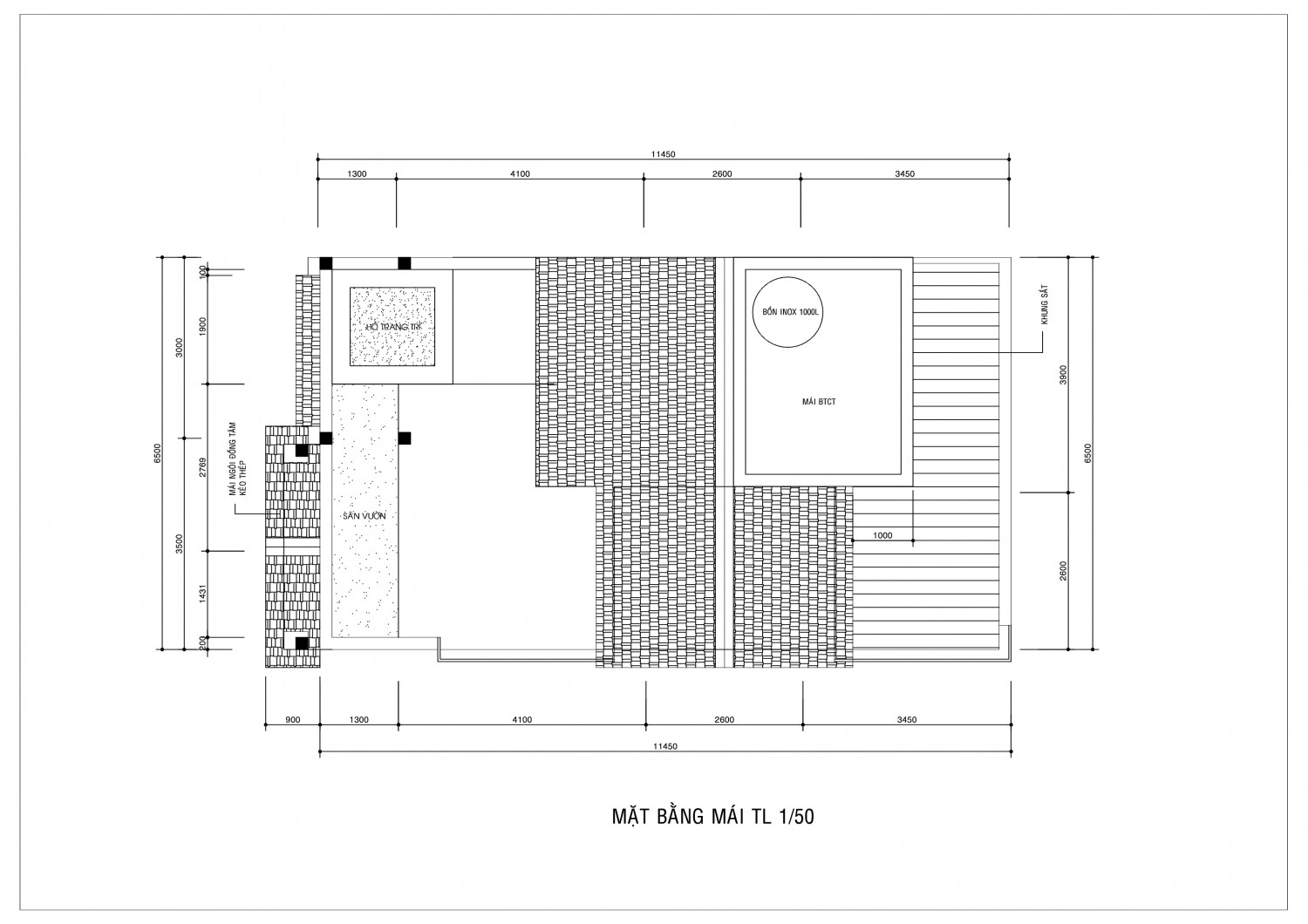
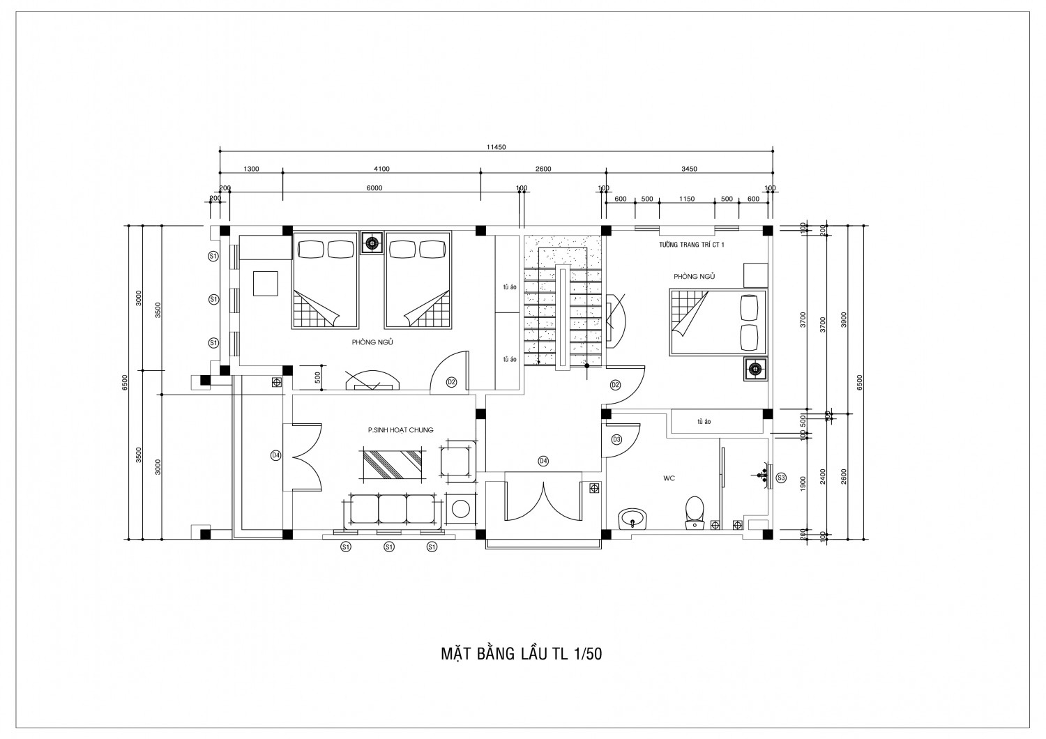
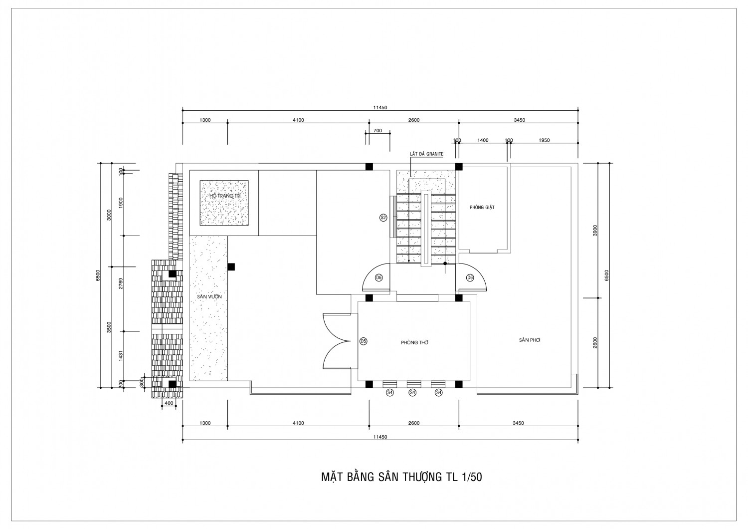
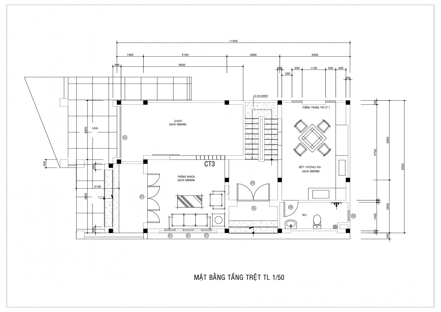
    Mặt bằng vật dụng các tầng, mặt cắt, mặt đứng kích thước

    Không sửa phối cảnh mẫu, hỗ trợ 2 lần chỉnh sửa mặt bằng theo yêu cầu Khách hàng

    Bản vẽ khổ A4, gởi bản vẽ in gồm phối cảnh và các bản vẽ liên quan, hoặc gởi email file thiết kế mặt bằng, mặt cắt và mặt đứng định dạng PDF, file acad, file ảnh...

    Liên hệ : 0943.973.325

        1
Tổng số điểm bài viết là: 0 điểm / 0 lượt
Click để đánh giá bài viết
1 sao
 
2 sao
 
3 sao
 
4 sao
 
5 sao
 
 
 

hotline1

Số mặt tiền: 02
Phong cách kiến trúc: Biệt thự mái thái.
Quy mô: 2.5 tầng mái thái
Chiều dài mặt tiền: 6.5
Chiều dài nhà: 11.5
Số phòng chức năng:
Số phòng ngủ: 02
Số phòng vệ sinh: 02

Số gara: 01

 

Mẫu mặt bằng MNP-00049

Liên hệ : 0943.973.325



Trao đổi bản vẽ

Mặt bằng mẫu mang tính chất tham khảo nhu cầu về nhà ở của Khách hàng, chúng tôi hỗ trợ chỉnh sửa mặt bằng cho phù hợp với phối cảnh và nhu cầu thực tế của Khách hàng khi mua hàng

Mẫu mặt bằng MNP-00043

Liên hệ : 0943.973.325



Trao đổi bản vẽ

Mặt bằng mẫu mang tính chất tham khảo nhu cầu về nhà ở của Khách hàng, chúng tôi hỗ trợ chỉnh sửa mặt bằng cho phù hợp với phối cảnh và nhu cầu thực tế của Khách hàng khi mua hàng

Mẫu mặt bằng MNP-00083

Liên hệ : 0943.973.325



Trao đổi bản vẽ

Mặt bằng mẫu mang tính chất tham khảo nhu cầu về nhà ở của Khách hàng, chúng tôi hỗ trợ chỉnh sửa mặt bằng cho phù hợp với phối cảnh và nhu cầu thực tế của Khách hàng khi mua hàng

Mẫu mặt bằng MNP-00058

Liên hệ : 0943.973.325



Trao đổi bản vẽ

Mặt bằng mẫu mang tính chất tham khảo nhu cầu về nhà ở của Khách hàng, chúng tôi hỗ trợ chỉnh sửa mặt bằng cho phù hợp với phối cảnh và nhu cầu thực tế của Khách hàng khi mua hàng

Mẫu mặt bằng MNP-00077

Liên hệ : 0943.973.325



Trao đổi bản vẽ

Mặt bằng mẫu mang tính chất tham khảo nhu cầu về nhà ở của Khách hàng, chúng tôi hỗ trợ chỉnh sửa mặt bằng cho phù hợp với phối cảnh và nhu cầu thực tế của Khách hàng khi mua hàng

Mẫu mặt bằng MNP-00046

Liên hệ : 0943.973.325



Trao đổi bản vẽ

Mặt bằng mẫu mang tính chất tham khảo nhu cầu về nhà ở của Khách hàng, chúng tôi hỗ trợ chỉnh sửa mặt bằng cho phù hợp với phối cảnh và nhu cầu thực tế của Khách hàng khi mua hàng

Mẫu mặt bằng MNP-00084

Liên hệ : 0943.973.325



Trao đổi bản vẽ

Mặt bằng mẫu mang tính chất tham khảo nhu cầu về nhà ở của Khách hàng, chúng tôi hỗ trợ chỉnh sửa mặt bằng cho phù hợp với phối cảnh và nhu cầu thực tế của Khách hàng khi mua hàng

Mẫu mặt bằng MNP-00076

Liên hệ : 0943.973.325



Trao đổi bản vẽ

Mặt bằng mẫu mang tính chất tham khảo nhu cầu về nhà ở của Khách hàng, chúng tôi hỗ trợ chỉnh sửa mặt bằng cho phù hợp với phối cảnh và nhu cầu thực tế của Khách hàng khi mua hàng

s1

s3

 

s3