Tìm kiếm mẫu nhà

quy trinh

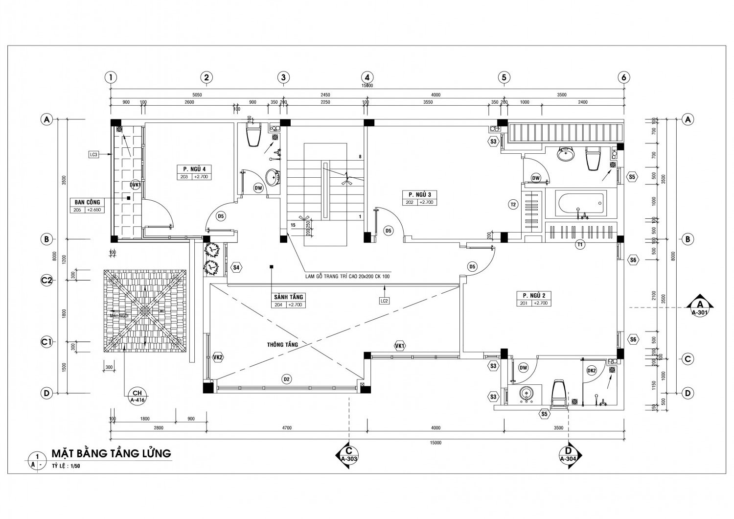
MBT-00027

  • GÓI THIẾT KẾ KIẾN TRÚC MỚI
  • Đăng ngày 07-12-2023 12:48:03 AM - 439 Lượt xem

  • Phối cảnh theo mẫu có sẵn trên website

    Mặt bằng vật dụng các tầng, mặt cắt, mặt đứng kích thước

    Không sửa phối cảnh mẫu, hỗ trợ 2 lần chỉnh sửa mặt bằng theo yêu cầu Khách hàng

    Bản vẽ khổ A4, gởi bản vẽ in gồm phối cảnh và các bản vẽ liên quan, hoặc gởi email file thiết kế mặt bằng, mặt cắt và mặt đứng định dạng PDF, file acad, file ảnh...

    Liên hệ : 0943.973.325

        1
Tổng số điểm bài viết là: 0 điểm / 0 lượt
Click để đánh giá bài viết
1 sao
 
2 sao
 
3 sao
 
4 sao
 
5 sao
 
 
 

hotline1

1. Loại mẫu nhà: Biệt thự 3.5 tầng mái dốc có hồ bơi
2. Số mặt tiền:02
3. Phong cách kiến trúc: Biệt thự có hồ bơi
4. Quy mô: 3.5  tầng
-Số tầng: 3.5
-Diện tích:110 m2 ( 1 sàn)
5. Chiều dài mặt tiền: 8
6. Chiều dài nhà: 15
7. SÔ PHÒNG CHỨC NĂNG
- Số phòng ngủ: 05

- Số phòng vệ sinh: 05

-Số gara: 01

 

Mẫu mặt bằng MBT-00201

Liên hệ : 0943.973.325



Trao đổi bản vẽ

Mặt bằng mẫu mang tính chất tham khảo nhu cầu về nhà ở của Khách hàng, chúng tôi hỗ trợ chỉnh sửa mặt bằng cho phù hợp với phối cảnh và nhu cầu thực tế của Khách hàng khi mua hàng

Mẫu mặt bằng MBT-00001

Liên hệ : 0943.973.325



Trao đổi bản vẽ

Mặt bằng mẫu mang tính chất tham khảo nhu cầu về nhà ở của Khách hàng, chúng tôi hỗ trợ chỉnh sửa mặt bằng cho phù hợp với phối cảnh và nhu cầu thực tế của Khách hàng khi mua hàng

Mẫu mặt bằng MNP-00011

Liên hệ : 0943.973.325



Trao đổi bản vẽ

Mặt bằng mẫu mang tính chất tham khảo nhu cầu về nhà ở của Khách hàng, chúng tôi hỗ trợ chỉnh sửa mặt bằng cho phù hợp với phối cảnh và nhu cầu thực tế của Khách hàng khi mua hàng

Mẫu mặt bằng MBT-00002

Liên hệ : 0943.973.325



Trao đổi bản vẽ

Mặt bằng mẫu mang tính chất tham khảo nhu cầu về nhà ở của Khách hàng, chúng tôi hỗ trợ chỉnh sửa mặt bằng cho phù hợp với phối cảnh và nhu cầu thực tế của Khách hàng khi mua hàng

Mẫu mặt bằng MNP-00104

Liên hệ : 0943.973.325



Trao đổi bản vẽ

Mặt bằng mẫu mang tính chất tham khảo nhu cầu về nhà ở của Khách hàng, chúng tôi hỗ trợ chỉnh sửa mặt bằng cho phù hợp với phối cảnh và nhu cầu thực tế của Khách hàng khi mua hàng

Mẫu mặt bằng MBT-00028

Liên hệ : 0943.973.325



Trao đổi bản vẽ

Mặt bằng mẫu mang tính chất tham khảo nhu cầu về nhà ở của Khách hàng, chúng tôi hỗ trợ chỉnh sửa mặt bằng cho phù hợp với phối cảnh và nhu cầu thực tế của Khách hàng khi mua hàng

Mẫu mặt bằng MBT-00189

Liên hệ : 0943.973.325



Trao đổi bản vẽ

Mặt bằng mẫu mang tính chất tham khảo nhu cầu về nhà ở của Khách hàng, chúng tôi hỗ trợ chỉnh sửa mặt bằng cho phù hợp với phối cảnh và nhu cầu thực tế của Khách hàng khi mua hàng

Mẫu mặt bằng MBT-00180

Liên hệ : 0943.973.325



Trao đổi bản vẽ

Mặt bằng mẫu mang tính chất tham khảo nhu cầu về nhà ở của Khách hàng, chúng tôi hỗ trợ chỉnh sửa mặt bằng cho phù hợp với phối cảnh và nhu cầu thực tế của Khách hàng khi mua hàng

s1

s3

 

s3