Tìm kiếm mẫu nhà

quy trinh

MNP-00004

  • GÓI THIẾT KẾ KIẾN TRÚC MỚI
  • Đăng ngày 26-12-2024 10:43:03 PM - 375 Lượt xem

  • Phối cảnh theo mẫu có sẵn trên website

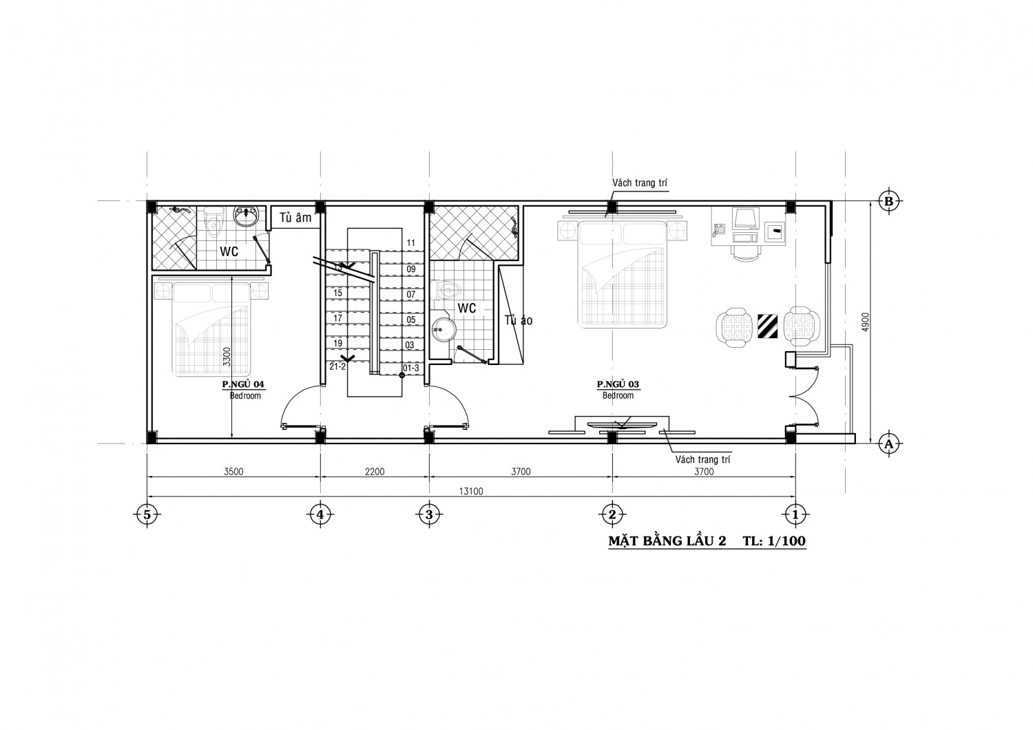
    Mặt bằng vật dụng các tầng, mặt cắt, mặt đứng kích thước

    Không sửa phối cảnh mẫu, hỗ trợ 2 lần chỉnh sửa mặt bằng theo yêu cầu Khách hàng

    Bản vẽ khổ A4, gởi bản vẽ in gồm phối cảnh và các bản vẽ liên quan, hoặc gởi email file thiết kế mặt bằng, mặt cắt và mặt đứng định dạng PDF, file acad, file ảnh...

    Liên hệ : 0943.973.325

        1
Tổng số điểm bài viết là: 0 điểm / 0 lượt
Click để đánh giá bài viết
1 sao
 
2 sao
 
3 sao
 
4 sao
 
5 sao
 
 
 

hotline1

Chi tiết phối cảnh nhà phố NP-0004

-Số mặt tiền: 1

-Phong cách kiến trúc: Hiện đại mái bằng

-Quy mô: 4 tầng

-Chiều dài mặt tiền: 4,9m

-Chiều dài nhà : 13,1m

 

Mẫu mặt bằng NMP-00368

Liên hệ : 0943.973.325



Trao đổi bản vẽ

Mặt bằng mẫu mang tính chất tham khảo nhu cầu về nhà ở của Khách hàng, chúng tôi hỗ trợ chỉnh sửa mặt bằng cho phù hợp với phối cảnh và nhu cầu thực tế của Khách hàng khi mua hàng

Mẫu mặt bằng MNP-00362

Liên hệ : 0943.973.325



Trao đổi bản vẽ

Mặt bằng mẫu mang tính chất tham khảo nhu cầu về nhà ở của Khách hàng, chúng tôi hỗ trợ chỉnh sửa mặt bằng cho phù hợp với phối cảnh và nhu cầu thực tế của Khách hàng khi mua hàng

Mẫu mặt bằng NMP-00370

Liên hệ : 0943.973.325



Trao đổi bản vẽ

Mặt bằng mẫu mang tính chất tham khảo nhu cầu về nhà ở của Khách hàng, chúng tôi hỗ trợ chỉnh sửa mặt bằng cho phù hợp với phối cảnh và nhu cầu thực tế của Khách hàng khi mua hàng

Mẫu mặt bằng NMP-00371

Liên hệ : 0943.973.325



Trao đổi bản vẽ

Mặt bằng mẫu mang tính chất tham khảo nhu cầu về nhà ở của Khách hàng, chúng tôi hỗ trợ chỉnh sửa mặt bằng cho phù hợp với phối cảnh và nhu cầu thực tế của Khách hàng khi mua hàng

Mẫu mặt bằng MNP-00364

Liên hệ : 0943.973.325



Trao đổi bản vẽ

Mặt bằng mẫu mang tính chất tham khảo nhu cầu về nhà ở của Khách hàng, chúng tôi hỗ trợ chỉnh sửa mặt bằng cho phù hợp với phối cảnh và nhu cầu thực tế của Khách hàng khi mua hàng

Mẫu mặt bằng NMP-00369

Liên hệ : 0943.973.325



Trao đổi bản vẽ

Mặt bằng mẫu mang tính chất tham khảo nhu cầu về nhà ở của Khách hàng, chúng tôi hỗ trợ chỉnh sửa mặt bằng cho phù hợp với phối cảnh và nhu cầu thực tế của Khách hàng khi mua hàng

Mẫu mặt bằng NMP-00367

Liên hệ : 0943.973.325



Trao đổi bản vẽ

Mặt bằng mẫu mang tính chất tham khảo nhu cầu về nhà ở của Khách hàng, chúng tôi hỗ trợ chỉnh sửa mặt bằng cho phù hợp với phối cảnh và nhu cầu thực tế của Khách hàng khi mua hàng

Mẫu mặt bằng NMP-00366

Liên hệ : 0943.973.325



Trao đổi bản vẽ

Mặt bằng mẫu mang tính chất tham khảo nhu cầu về nhà ở của Khách hàng, chúng tôi hỗ trợ chỉnh sửa mặt bằng cho phù hợp với phối cảnh và nhu cầu thực tế của Khách hàng khi mua hàng

» Các Mẫu Thiết Kế Nhà Có Quy Mô Tương Tự

Mẫu nhà:NMP-00369

Mặt tiền: 4-5 m

Số tầng: 4 Tầng

Mẫu nhà:MNP-00081

Mặt tiền: 4-5 m

Số tầng: 4 Tầng

Mẫu nhà:MNP-00068

Mặt tiền: 4-5 m

Số tầng: 4 Tầng

Mẫu nhà:MNP-00066

Mặt tiền: 4-5 m

Số tầng: 4 Tầng

Mẫu nhà:MNP-00064

Mặt tiền: 4-5 m

Số tầng: 4 Tầng

Mẫu nhà:MNP-00063

Mặt tiền: 4-5 m

Số tầng: 4 Tầng

Mẫu nhà:MNP-00056

Mặt tiền: 4-5 m

Số tầng: 4 Tầng

Mẫu nhà:MNP-00054

Mặt tiền: 4-5 m

Số tầng: 4 Tầng

 

s1

s3

 

s3