Tìm kiếm mẫu nhà

quy trinh

MNP-00014

  • GÓI THIẾT KẾ KIẾN TRÚC MỚI
  • Đăng ngày 29-12-2024 11:07:23 PM - 322 Lượt xem

  • Phối cảnh theo mẫu có sẵn trên website

    Mặt bằng vật dụng các tầng, mặt cắt, mặt đứng kích thước

    Không sửa phối cảnh mẫu, hỗ trợ 2 lần chỉnh sửa mặt bằng theo yêu cầu Khách hàng

    Bản vẽ khổ A4, gởi bản vẽ in gồm phối cảnh và các bản vẽ liên quan, hoặc gởi email file thiết kế mặt bằng, mặt cắt và mặt đứng định dạng PDF, file acad, file ảnh...

    Liên hệ : 0943.973.325

        1
Tổng số điểm bài viết là: 0 điểm / 0 lượt
Click để đánh giá bài viết
1 sao
 
2 sao
 
3 sao
 
4 sao
 
5 sao
 
 
 

hotline1

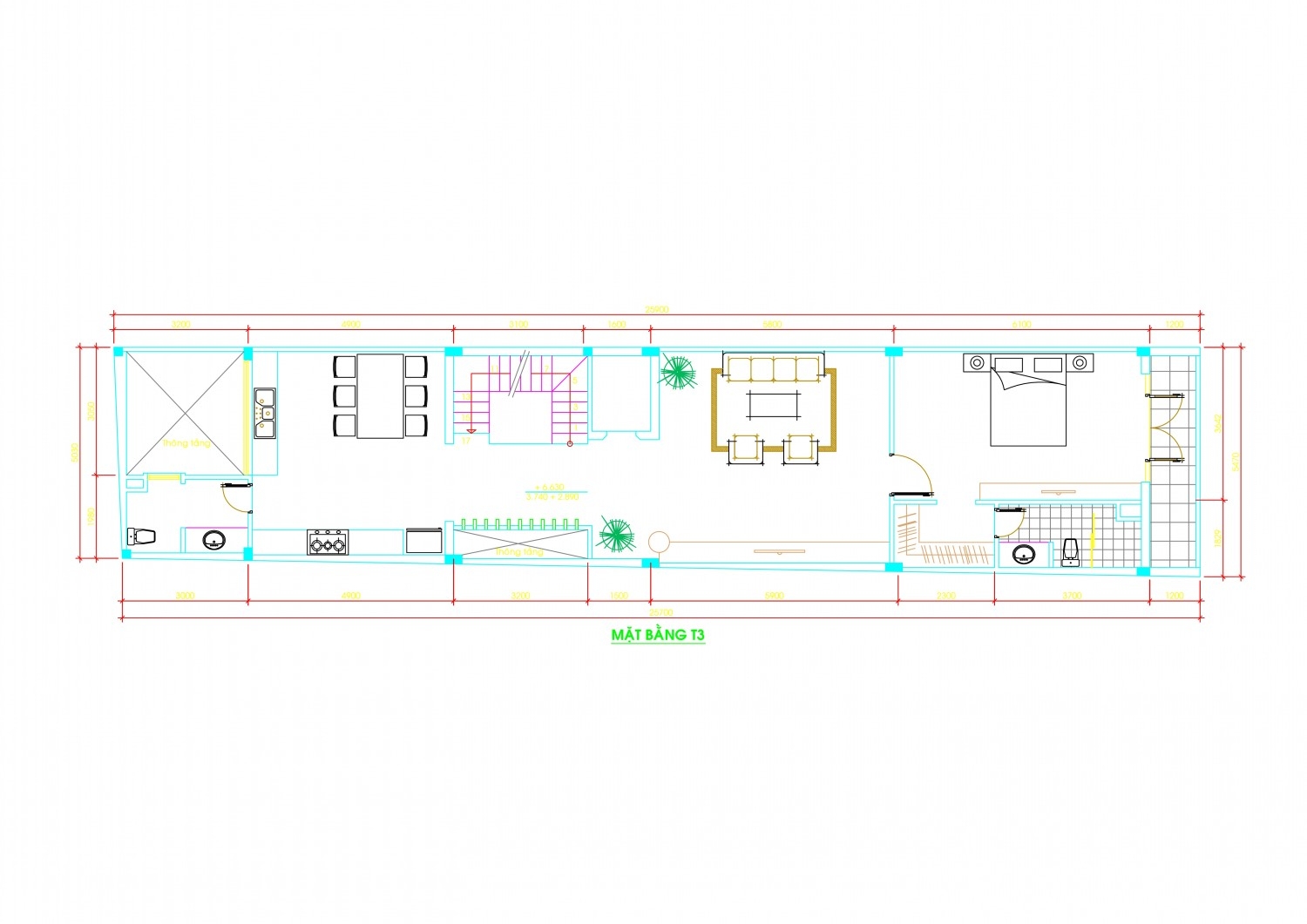
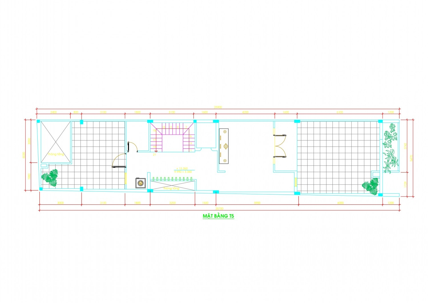
hông tin sản phẩm:

Tầng 1 : Gara + Văn phòng + Wc

Tầng 2 : Sinh hoạt chung + Phòng ngủ + Wc

Tầng 3 : Phòng ngủ + Phòng bếp  - Ăn + Phòng khách + Wc

Tầng 4 : 3 Phòng ngủ + 2 Wc

Tầng 5 : Sân thượng + Phòng thờ + Phòng giặt + Sân phơi

Hình thức kiến trúc:  Nhà phố 5 tầng hiện đại

 

Mẫu mặt bằng MNP-00073

Liên hệ : 0943.973.325



Trao đổi bản vẽ

Mặt bằng mẫu mang tính chất tham khảo nhu cầu về nhà ở của Khách hàng, chúng tôi hỗ trợ chỉnh sửa mặt bằng cho phù hợp với phối cảnh và nhu cầu thực tế của Khách hàng khi mua hàng

Mẫu mặt bằng MNP-00074

Liên hệ : 0943.973.325



Trao đổi bản vẽ

Mặt bằng mẫu mang tính chất tham khảo nhu cầu về nhà ở của Khách hàng, chúng tôi hỗ trợ chỉnh sửa mặt bằng cho phù hợp với phối cảnh và nhu cầu thực tế của Khách hàng khi mua hàng

Mẫu mặt bằng MNP-00082

Liên hệ : 0943.973.325



Trao đổi bản vẽ

Mặt bằng mẫu mang tính chất tham khảo nhu cầu về nhà ở của Khách hàng, chúng tôi hỗ trợ chỉnh sửa mặt bằng cho phù hợp với phối cảnh và nhu cầu thực tế của Khách hàng khi mua hàng

Mẫu mặt bằng MNP-00088

Liên hệ : 0943.973.325



Trao đổi bản vẽ

Mặt bằng mẫu mang tính chất tham khảo nhu cầu về nhà ở của Khách hàng, chúng tôi hỗ trợ chỉnh sửa mặt bằng cho phù hợp với phối cảnh và nhu cầu thực tế của Khách hàng khi mua hàng

Mẫu mặt bằng MNP-00103

Liên hệ : 0943.973.325



Trao đổi bản vẽ

Mặt bằng mẫu mang tính chất tham khảo nhu cầu về nhà ở của Khách hàng, chúng tôi hỗ trợ chỉnh sửa mặt bằng cho phù hợp với phối cảnh và nhu cầu thực tế của Khách hàng khi mua hàng

Mẫu mặt bằng MNP-00092

Liên hệ : 0943.973.325



Trao đổi bản vẽ

Mặt bằng mẫu mang tính chất tham khảo nhu cầu về nhà ở của Khách hàng, chúng tôi hỗ trợ chỉnh sửa mặt bằng cho phù hợp với phối cảnh và nhu cầu thực tế của Khách hàng khi mua hàng

Mẫu mặt bằng MNP-00100

Liên hệ : 0943.973.325



Trao đổi bản vẽ

Mặt bằng mẫu mang tính chất tham khảo nhu cầu về nhà ở của Khách hàng, chúng tôi hỗ trợ chỉnh sửa mặt bằng cho phù hợp với phối cảnh và nhu cầu thực tế của Khách hàng khi mua hàng

Mẫu mặt bằng MNP-00093

Liên hệ : 0943.973.325



Trao đổi bản vẽ

Mặt bằng mẫu mang tính chất tham khảo nhu cầu về nhà ở của Khách hàng, chúng tôi hỗ trợ chỉnh sửa mặt bằng cho phù hợp với phối cảnh và nhu cầu thực tế của Khách hàng khi mua hàng

s1

s3

 

s3