Tìm kiếm mẫu nhà

quy trinh

MNP-00026-1

  • GÓI THIẾT KẾ KIẾN TRÚC MỚI
  • Đăng ngày 25-12-2023 03:40:44 PM - 676 Lượt xem

  • Phối cảnh theo mẫu có sẵn trên website

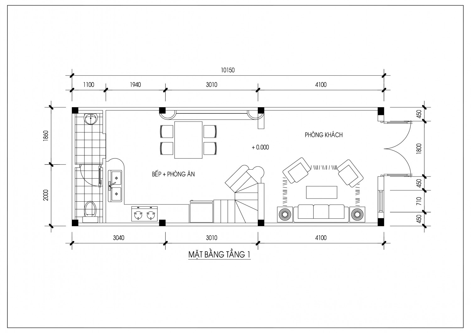
    Mặt bằng vật dụng các tầng, mặt cắt, mặt đứng kích thước

    Không sửa phối cảnh mẫu, hỗ trợ 2 lần chỉnh sửa mặt bằng theo yêu cầu Khách hàng

    Bản vẽ khổ A4, gởi bản vẽ in gồm phối cảnh và các bản vẽ liên quan, hoặc gởi email file thiết kế mặt bằng, mặt cắt và mặt đứng định dạng PDF, file acad, file ảnh...

    Liên hệ : 0943.973.325

        1
Tổng số điểm bài viết là: 0 điểm / 0 lượt
Click để đánh giá bài viết
1 sao
 
2 sao
 
3 sao
 
4 sao
 
5 sao
 
 
 

hotline1

1. Loại mẫu nhà: Nhà phố 3 tầng mặt tiền 3.86 m mái bằng
2. Số mặt tiền:01
3. Phong cách kiến trúc: Nhà phố mái bằng.
4. Quy mô: 3 tầng
-Số tầng: 3
-Diện tích: 40 m2 ( 1 sàn)
5. Chiều dài mặt tiền: 3.86
6. Chiều dài nhà: 10.35
7. SÔ PHÒNG CHỨC NĂNG
- Số phòng ngủ: 03

- Số phòng vệ sinh: 03

 

Mẫu mặt bằng MNP-00099

Liên hệ : 0943.973.325



Trao đổi bản vẽ

Mặt bằng mẫu mang tính chất tham khảo nhu cầu về nhà ở của Khách hàng, chúng tôi hỗ trợ chỉnh sửa mặt bằng cho phù hợp với phối cảnh và nhu cầu thực tế của Khách hàng khi mua hàng

Mẫu mặt bằng MNP-00102

Liên hệ : 0943.973.325



Trao đổi bản vẽ

Mặt bằng mẫu mang tính chất tham khảo nhu cầu về nhà ở của Khách hàng, chúng tôi hỗ trợ chỉnh sửa mặt bằng cho phù hợp với phối cảnh và nhu cầu thực tế của Khách hàng khi mua hàng

Mẫu mặt bằng MNP-00096

Liên hệ : 0943.973.325



Trao đổi bản vẽ

Mặt bằng mẫu mang tính chất tham khảo nhu cầu về nhà ở của Khách hàng, chúng tôi hỗ trợ chỉnh sửa mặt bằng cho phù hợp với phối cảnh và nhu cầu thực tế của Khách hàng khi mua hàng

Mẫu mặt bằng MNP-00097

Liên hệ : 0943.973.325



Trao đổi bản vẽ

Mặt bằng mẫu mang tính chất tham khảo nhu cầu về nhà ở của Khách hàng, chúng tôi hỗ trợ chỉnh sửa mặt bằng cho phù hợp với phối cảnh và nhu cầu thực tế của Khách hàng khi mua hàng

Mẫu mặt bằng MNP-00072

Liên hệ : 0943.973.325



Trao đổi bản vẽ

Mặt bằng mẫu mang tính chất tham khảo nhu cầu về nhà ở của Khách hàng, chúng tôi hỗ trợ chỉnh sửa mặt bằng cho phù hợp với phối cảnh và nhu cầu thực tế của Khách hàng khi mua hàng

Mẫu mặt bằng MNP-00089

Liên hệ : 0943.973.325



Trao đổi bản vẽ

Mặt bằng mẫu mang tính chất tham khảo nhu cầu về nhà ở của Khách hàng, chúng tôi hỗ trợ chỉnh sửa mặt bằng cho phù hợp với phối cảnh và nhu cầu thực tế của Khách hàng khi mua hàng

Mẫu mặt bằng MNP-00101

Liên hệ : 0943.973.325



Trao đổi bản vẽ

Mặt bằng mẫu mang tính chất tham khảo nhu cầu về nhà ở của Khách hàng, chúng tôi hỗ trợ chỉnh sửa mặt bằng cho phù hợp với phối cảnh và nhu cầu thực tế của Khách hàng khi mua hàng

Mẫu mặt bằng MNP-00098

Liên hệ : 0943.973.325



Trao đổi bản vẽ

Mặt bằng mẫu mang tính chất tham khảo nhu cầu về nhà ở của Khách hàng, chúng tôi hỗ trợ chỉnh sửa mặt bằng cho phù hợp với phối cảnh và nhu cầu thực tế của Khách hàng khi mua hàng

» Các Mẫu Thiết Kế Nhà Có Quy Mô Tương Tự

Mẫu nhà:MNP-00102

Mặt tiền: 3-4 m

Số tầng: 3 Tầng

Mẫu nhà:MNP-00101

Mặt tiền: 3-4 m

Số tầng: 3 Tầng

Mẫu nhà:MNP-00098

Mặt tiền: 3-4 m

Số tầng: 3 Tầng

Mẫu nhà:MNP-00097

Mặt tiền: 3-4 m

Số tầng: 3 Tầng

Mẫu nhà:MNP-00072

Mặt tiền: 3-4 m

Số tầng: 3 Tầng

Mẫu nhà:MNP-00057

Mặt tiền: 3-4 m

Số tầng: 3 Tầng

Mẫu nhà:MNP-00026-4

Mặt tiền: 3-4 m

Số tầng: 3 Tầng

Mẫu nhà:MNP-00026-3

Mặt tiền: 3-4 m

Số tầng: 3 Tầng

 

s1

s3

 

s3